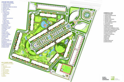
Client MJ Developers Location Namangan, Uzbekistan Role Landscape Architectural Design Services (Conceptual Stage) Year 2019-2020 Status Under Construction Project navigationPreviousPrevious project:Prateek Edifice, NoidaNextNext project:Linear Garden