Client
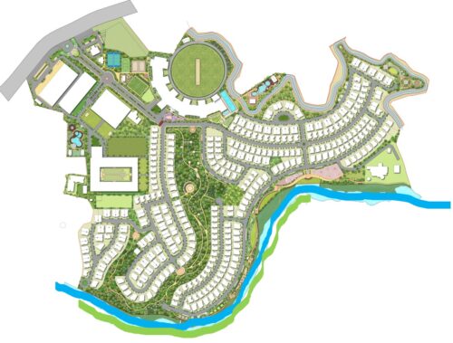
Arihant Superstructure
Location
Karjat, India
Role
Landscape Master Plan & Design for 86 acres
Status
Under Construction

Client
Arihant Superstructure
Location
Karjat, India
Role
Landscape Master Plan & Design for 86 acres
Status
Under Construction