Arihant World Villas
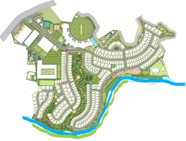
Client Arihant Superstructure Location Karjat, India Role Landscape Master Plan & Design for 86 acres Status Under Construction
Client Arihant Superstructure Location Karjat, India Role Landscape Master Plan & Design for 86 acres Status Under Construction
Client Bombay Municipal Corporation Location Mumbai, India Role Landscape Master planning & Revitalization Year Status Completed
Client Kalpataru Developers Location Karjat, India Role Landscape Master planning Status Under Construction
Client House of Abhinandan Lodha (HOABL) Location Matheran, India Role Complete landscape architectural services for 90 acres Collaborators Broadway Malyan Singapore Status Completed
Client House Of Abhinandan Lodha (HOABL) Location Dapoli, India Role Complete landscape architectural services for 120 acres Year 2023 Status Completed
We’re thrilled to announce a major milestone in the development of Garneau’s urban landscape: the completion of the foundation of our transformative residential project, Altarius! After overcoming some hurdles, including a successful appeal to the SDAB in 2023, we’re now ready to move full steam ahead with construction. This project, led by Bryce Pinto, Principal…
GSA principal Dnyanesh Deshpande and Associate Principal Marcelo Figueira recently presented at the 2024 Community Planning Association of Alberta’s Beyond Municipal Borders conference in Red Deer. Their presentation titled ‘Beyond Boundaries: Reimagining Communities Through Neighbourly Planning’ provided an in-depth exploration of Neighbourly Planning, emphasizing its people-centric approach to fostering inclusive and vibrant urban and rural…
We at Green Space Alliance-GSA always believe in continuous learning, it may be skill enhancement, knowledge driven sessions or brainstorming. It was Insightful to understand varied experiences, discuss the use cases and evolve together. A regular practice at GSA these interactive sessions definitely helps the team to evolve and deliver better.
GSA is privileged to be a part of “Cities and SDGs – Summit on Liveable Cities and Urban Sustainability” which happened recently in Mumbai. Dheeraj Patil, Principal at Green Space Alliance (GSA) has explained positive contribution through landscape architecture projects that helps addressing urban sustainability, climate change and city resilience in major urban areas. It…